Vivo produkce

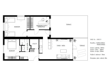
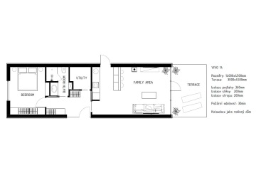
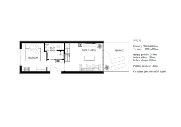
Apartmány VIVO
Apartmány VIVO
Udržitelný modulární systém staveb na bázi dřeva pro glamping, rekreaci i trvalé bydlení
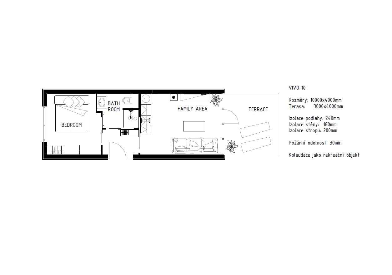
Představujeme promyšlený stavební systém s důrazem na ekologii, design a funkčnost. Naše modulární budovy jsou navrženy zejména pro glampingové resorty a rekreační využití a díky variabilitě řešení si z nich snadno sestavíte celý areál přesně podle svých představ – od jednotlivých apartmánů po kompletní zázemí.
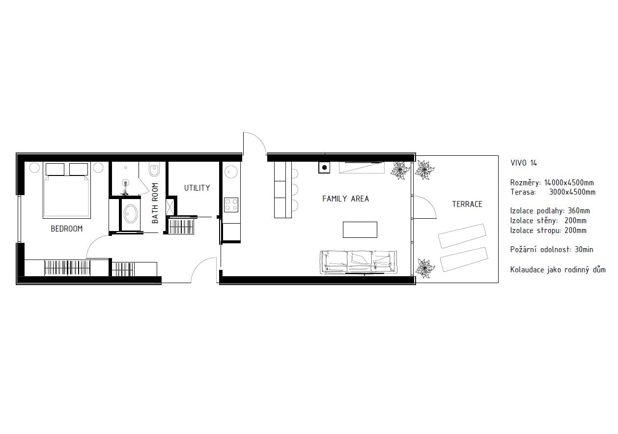
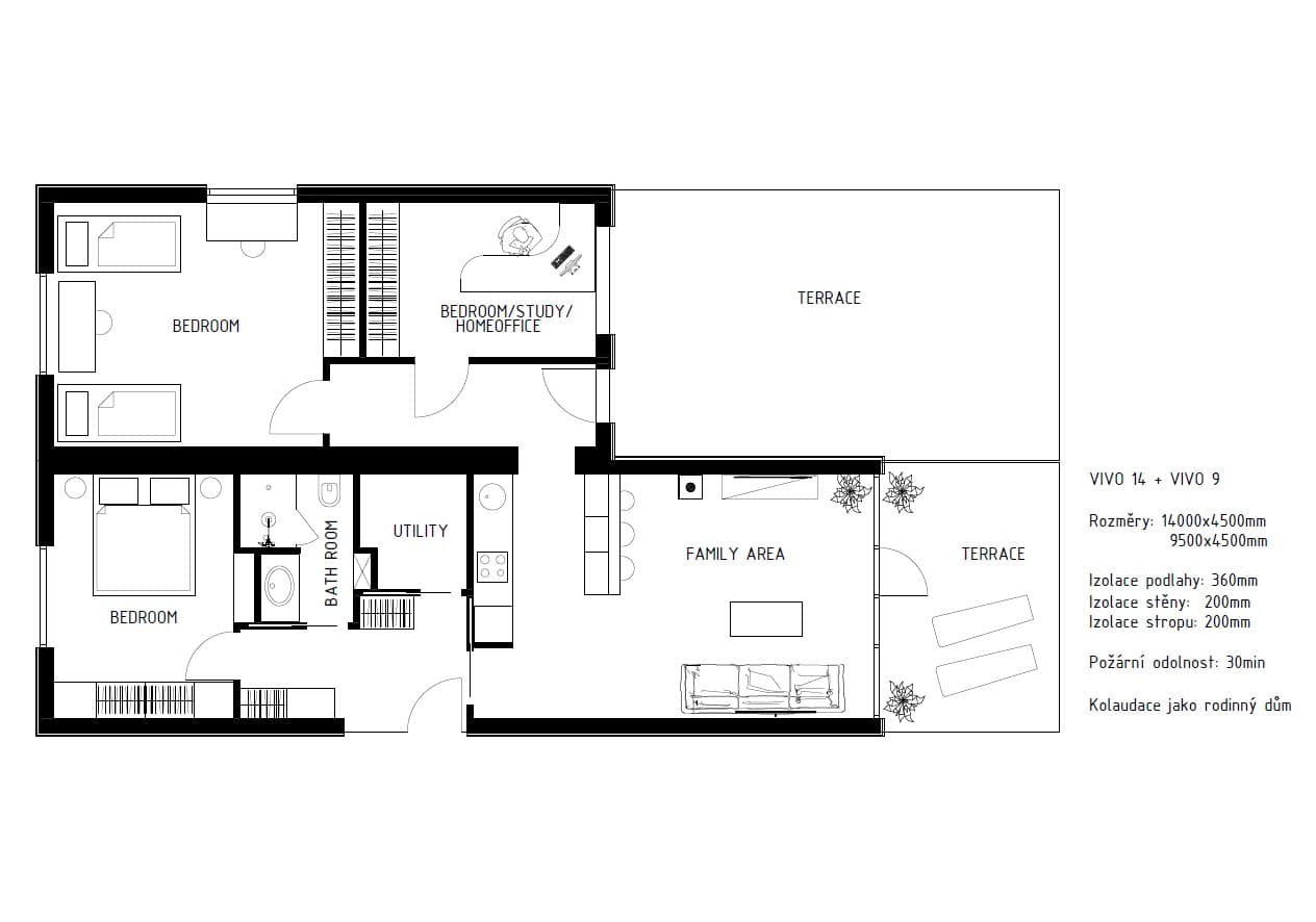
Model VIVO 14 je navíc navržen tak, aby splňoval normy a podmínky pro trvalé bydlení. Lze jej umístit na stavební pozemky určené pro rodinné domy a standardně zkolaudovat jako plnohodnotný rodinný dům.
Pro nezávaznou kalkulaci nás neváhejte kontaktovat

Hlavní parametry:
Individuální řešení dle cílové destinace
Nízkoenergetická skladba na bázi dřeva
Kolaudace jako rodinný dům
Díky rektifikačním nohám lze umístit do svahu
Výsuvná integrovaná / pevná terasa bez podpěr
OFF-GRID Fotovoltaika
Osazení jeřábem na Váš pozemek
Navrženo pro bydlení i glamping
Po dokočení vývoje možnost plného ostrovního režimu ( Energie, voda, odpad )
Cena od 38500 Kč / m2 včetně DPH
MOŽNOST PROHLÍDKY VZOROVÉHO VIVO 14
Dokumenty ke stažení
NOSNÝ RÁM PRO MODULÁRNÍ STAVBY
Nový nosný rám na bázi dřeva pro modulární stavby
Náš produkt vznikl jako odpověď na rostoucí nároky na kvalitu, funkčnost a technické parametry v oblasti modulárního stavitelství.
Na rozdíl od běžně používaných ocelových rámů, které často trpí nízkou tepelnou a akustickou izolací, výskytem tepelných mostů, omezenou požární odolností a rizikem koroze, náš systém eliminuje tyto nedostatky.
Naše inovativní konstrukce kombinuje to nejlepší z oceli a dřeva. Vyvinuli jsme konstrukční řešení s vynikajícími tepelnětechnickými vlastnostmi, vyšší požární bezpečností a výrazně lepším akustickým komfortem. Zároveň konstrukce nabízí vysokou míru variability při zachování standardizace pro efektivní výstavbu.
Tento přístup otevírá nové možnosti pro efektivní, odolné a udržitelné modulární stavby.
Chráněno úřadem průmyslového vlastnictví
Naše konstrukční řešení je garance originality a technické vyspělosti.
Pro více informací nás neváhejte kontaktovat
Hlavní parametry:
Inovovaná konstrukce využívající to nejlepšího z oboru modulárních staveb, dřeva a oceli
Základní rozměr konstrukce 8x2,5m, 8x3m
Maximální rozměr 12x4m
Individuální úprava rozměrů
Stohovatelnost na 3.podlaží
Základní požární odolnost rámu 30min
Vynikající tepelnětechnické a zvukové parametry
Stěny neplní nosnou funkci
Ideální pro stavby občanské vybavenosti, bytové i rodinné domy
Chráněno úřadem průmyslového vlastnictví
Dokumenty ke stažení
DÁLE
PŘIPRAVUJEME
VIVO IRIS Gate
Vjezdová VIVO IRIS Gate
Ideální do míst kde není možné použít standardních posuvných nebo otočných bran.
Řadové domy, úzké pozemky
Pro nezávaznou kalkulaci nás neváhejte kontaktovat

Hlavní parametry:
Základní rozměr dvojité brány 6x2m
Individuální konfigurace
Individuální volba materiálu a designu výplně
Volitelně OFF-GRID bez připojení k elektřině
Dálkové ovládání
Ovládání pomocí mobilní aplikace
Skrytý mechanismus zdvihu



Dokumenty ke stažení
VIVO Galaxy 5G Gril

Hlavní parametry:
Od otevřeného hniště po uzavíratelný gril
Snadná manipulace na velkých kolečkách
Výškově stavitelný
Uzavření na zimu prodlužuje životnost celé sestavy
Masivní kouřovod pro odvod spalin
Průměr grilovacího roštu - 650mm
Celkový průměr s nasazenými IRIS stolky - 1500mm
Volitelný energetický okruh umožňuje přeměnit odpadní teplo na elektrickou energii pro napájení osvětlení, USB portů či dalších zařízení.








Dokumenty ke stažení
VIVO Svařovací hlavice

Hlavní parametry:
Svařování potrubí od 50-150mm
Žádné programování
Snadné připojení k Vaší svářečce
Napájení 12V
Nastavení parametrů probíhá přímo na Vaší svářečce dle Vašich preferencí
Na hlavě si zvolíte pouze rychlost posunu jehly
Manuální nebo automatické dokončení okruhu
Dokumenty ke stažení
Varroa destructor
Nová léčebná metoda včelstev proti varroáze
Náš produkt vzniká jako reakce na aktuální situaci v léčení včelstev pomocí insekticidů a kyselin, kdy tyto praktiky považujeme za zastaralé a výrazně oslabující samotné včelstva.
Vývoj probíhá na vlastní včelnici kde je výrobek testován v průběhu celého roku.
Pro více informací nás neváhejte kontaktovat
.
.
.
.
.
















